Property Description

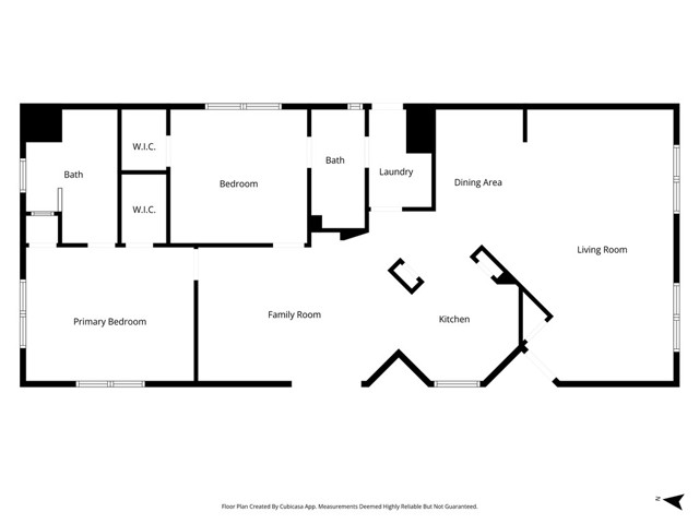
Welcome to Palos Verdes Rancho — Harbor City’s Premier 55+ Community! Discover comfort, convenience, and a wonderful sense of community at this beautifully maintained 2-bedroom, 2-bath home. Step inside and you’ll immediately notice the freshly painted interior and brand-new carpet that make this home feel fresh and move-in ready. The spacious layout features a welcoming formal living room, a cozy family or den area open to the kitchen, and a dining area enhanced by a built-in china cabinet—perfect for displaying your favorite dishes or décor. The kitchen offers plenty of counter space and stainless steel appliances, while the laundry room comes complete with a washer and dryer for added convenience. The primary suite includes a walk-in closet and private bath, providing a comfortable retreat at the end of the day. Enjoy outdoor living on your covered patio, with a covered driveway for parking and two storage sheds for extra personal storage. Located just steps from the community’s pool and clubhouse, you’ll love the active yet relaxed lifestyle that Palos Verdes Rancho offers. This well-maintained community features automatic gates at night for added security, and is conveniently close to shopping, medical services, and leisure activities. Buyers must qualify for the park land lease.

Features
: Pool
1
1
1
: Street Lights
: Heated, In ground, Community
: 0.00
: Close To Clubhouse
: Automatic gate, Resident manager, Carbon monoxide detector(s), Smoke Detector(s)
: Covered
1
: Individual Room, Dryer Included, Washer Included
: Walk-in Closet, All Bedrooms Down
: Ceiling Fan(s), Formica Counters
: Central
: Central Air
: Public
: Public Sewer
: Dishwasher, Refrigerator, Gas Cooktop
MLS Addon
7411022029
$0
: Kitchen Open To Family Room, Formica Counters
Arlington
Arling
Miller
Los Angeles Unified
$0
0
0
: Standard
25/10/2025 08:06:08
Listing courtesy of
Estate Properties
What is Nearby?
'Bearer' does not match '^(?i)Bearer [A-Za-z0-9\\-\\_]{128}$'

Manufactured In Park For Sale

26200 FramptonAvenue, Harbor City, California, 90710

2 Bedrooms
2 Bathrooms (Full)
1,267 Sqft
Visits : 1
$198,000
Listing ID #PV25243598
Basic Details
Status : Active
Listing Type : For Sale
Property Type : Manufactured In Park
Price : $198,000
Price Per Square Foot : $156
Square Footage : 1,267 Sqft
Year Built : 1975
View : Mountain(s)
Bedrooms : 2
Bathrooms : 2
Bathrooms (Full) : 2
Listing ID : PV25243598
Agent info
Rina Maya
Designated Broker
Contact Agent
Mortgage Calculator
$
$ %
years
%
$ %per year
$ %per year

$