Property Description

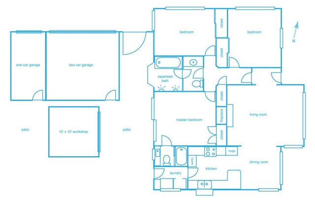
Across from Woodland Hills Country Club, this one-story midcentury residence combines privacy, craftsmanship, and convenience in the coveted south-of-Ventura neighborhood. Fully remodeled and expanded, the home sits on a quiet corner lot less than a mile from Ventura Blvd and minutes from Warner Center. rnrn — Light hardwood floors and dual-pane windows create a calm, continuous interior anchored by a gourmet kitchen finished in speckled granite with solid-oak cabinetry and pullout shelving. Lighting comes from five controllable sources: dimmable hidden rope lighting, task lighting over sink and display cabinets, under-counter perimeter lights, ceiling fixtures, and a spotlight above the granite breakfast counter. An ornamental glass door separates the entertainment area from the private wing. rnrn — At the end of the hall, a Japanese-style spa serves as the home’s centerpiece: steam system, karaoke audio, deep soaking tub, Calacatta Gold marble walls and baseboards, Breccia Onicata marble surfaces, Robern mirrored cabinets with a fog-free center mirror, and heated towel rack. The master suite features a private full bath with a Kohler Greek soaking tub, a granite countertop and baseboards, Grohe fixtures, a custom closet, and direct access to a secluded patio through a glass slider. rnrn — Three separate garages form a practical extension of the living space: a north-facing two-car garage with custom cabinetry and dropped lighting, an adjacent finished single bay with separate doors, and a 100-sq-ft finished motorcycle garage with reinforced floor, full-width ramp, bright lighting, and power outlets—adaptable for workshop or storage. Combined indoor and driveway parking accommodates eight vehicles, including two motorcycles.rnThe grounds follow a low-maintenance xeriscape of decomposed granite, river stone, and succulents, with a retaining wall leading to undeveloped hillside in the back yard. Upgrades include L-copper plumbing, seismic retrofit, Cat-5 cabling, tankless water heater, central air, and security system. rnrn — Trader Joe’s and Whole Foods are roughly 0.9 miles away; Kaiser Permanente less than two miles; UCLA Health, Costco, and Home Depot less than three. A thoughtful home for those who value function, subtlety, and enduring design.

Features
0
0
: No Common Walls
1
: Sidewalks, Street Lights, Suburban, Hiking, Preserve/public Land, Dog Park, Storm Drains
0
: 6.00
: Driveway, Direct Garage Access, Garage - Single Door, Garage Door Opener, Garage Faces Side, Off Street, Workshop In Garage, Concrete
1
: Gas
: Back Yard, Front Yard, 0-1 Unit/acre, Corner Lot, Garden, Up Slope From Street
: Block, Brick
: Wired for alarm system, Smoke Detector(s)
: Patio, Concrete
: Electricity - On Property, 220 Volts For Spa
1
: Gas Dryer Hookup, Individual Room, Dryer Included, Washer Included
: Living Room, Kitchen, Laundry, Attic, Main Floor Bedroom, Foyer, Main Floor Primary Bedroom, Primary Bathroom
: Composition
: Laminate
: Double Pane Windows, Low Emissivity Windows, Blinds, Bay Window(s), Skylight(s)
: Ground Level No Steps
: Bath
: Turnkey, Building Permit
: Raised, Seismic Tie Down
: Crown Molding, Recessed Lighting, Wired For Data, Wired For Sound, Ceiling Fan(s), Granite Counters, Copper Plumbing Full, Storage
2
3
: Central, natural gas, Fireplace(s)
: Central Air
: Electricity Available, Natural Gas Available, Sewer Connected, Water Connected, Cable Available, Phone Available
: Public
: Public Sewer
: Dishwasher, Refrigerator, Tankless Water Heater, Gas Oven, Self Cleaning Oven, Range Hood, Water Line To Refrigerator, Water Purifier
: No Interior Steps, Grab Bars In Bathroom(s)
MLS Addon
2171004011
7,920
60 x 132
$0
: Granite Counters, Pots & Pan Drawers, Remodeled Kitchen
: Shower, Bathtub, Separate Tub And Shower, Soaking Tub, Walk-in Shower, Exhaust Fan(s), Granite Counters, Remodeled, Upgraded, Shower In Tub, Dual Shower Heads (or Multiple), Main Floor Full Bath
3
Arlington
Arling
Miller
Los Angeles Unified
One
: Dining Room, Breakfast Counter / Bar
$0
: Shed(s), Workshop, Second Garage Detached
0
0
: Standard
Click Here
17/10/2025 14:35:03
Listing courtesy of
PACIFIC HOME BROKERS
What is Nearby?
'Bearer' does not match '^(?i)Bearer [A-Za-z0-9\\-\\_]{128}$'

Residential For Sale

4831 CanogaAvenue, Woodland Hills, California, 91364

3 Bedrooms
2 Bathrooms (Full)
1,330 Sqft
Visits : 1 in 6 days
$990,000
Listing ID #IV25241358
Basic Details
Status : Active
Listing Type : For Sale
Property Type : Residential
Property SubType : Single Family Residence
Price : $990,000
Price Per Square Foot : $744
Square Footage : 1,330 Sqft
Lot Area : 0.18 Sqft
Year Built : 1953
View : Mountain(s)
Bedrooms : 3
Bathrooms : 2
Bathrooms (Full) : 2
Listing ID : IV25241358
Agent info
Rina Maya
Designated Broker
Contact Agent
Mortgage Calculator
$
$ %
years
%
$ %per year
$ %per year

$